Auto Draft 53
Auto Draft 54
New Rochelle Downtown Overlay Zone and Generic Environmental Impact Statement
New Rochelle Downtown Overlay Zone and Generic Environmental Impact Statement 1

New Rochelle Downtown Overlay Zone and Generic Environmental Impact Statement

New Rochelle, NY

Environmental planning for the review of New Rochelle's Downtown Overlay Zone

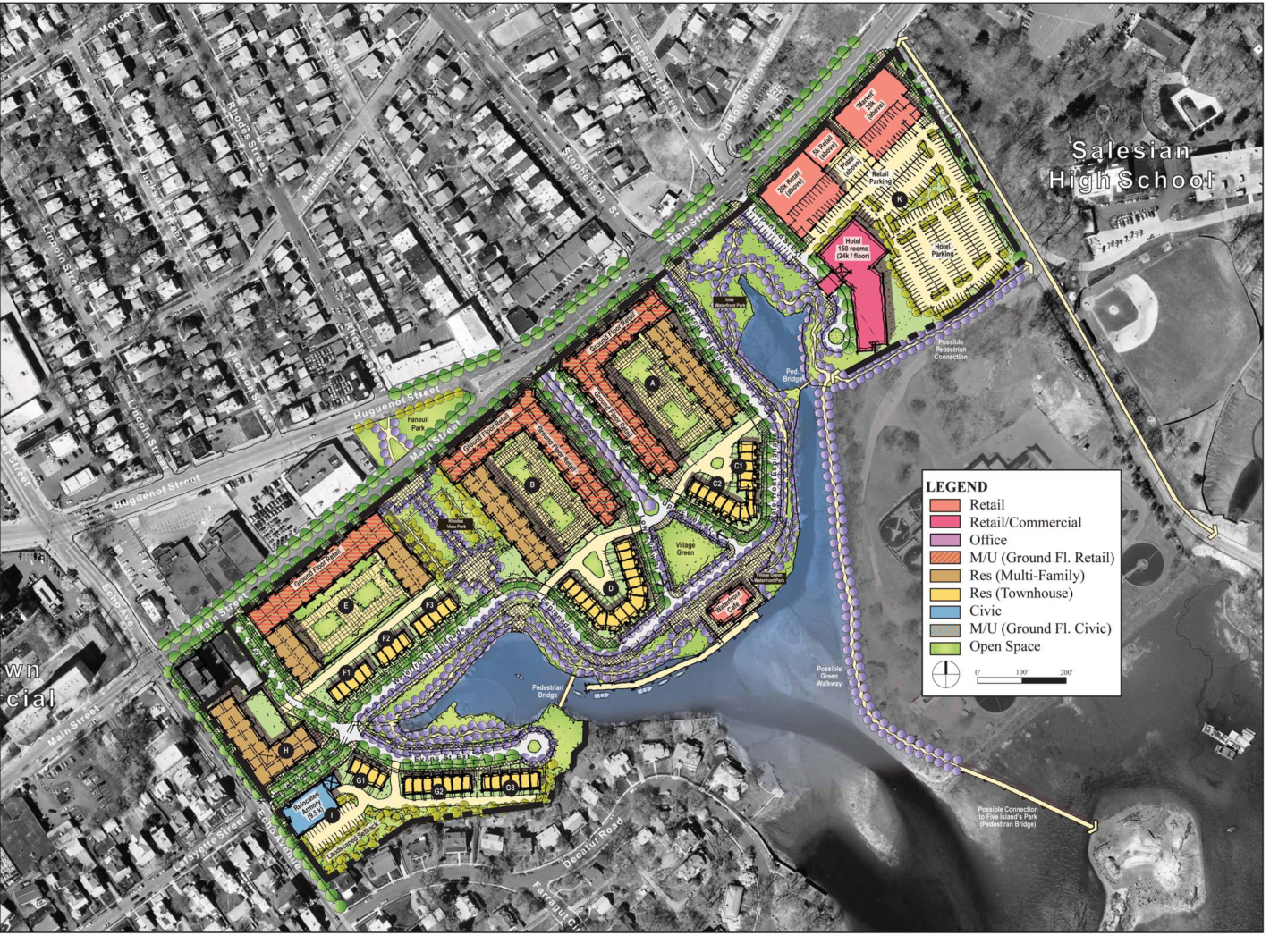
The City of New Rochelle retained BFJ Planning in 2015 to assist in the review of the New Rochelle Downtown Development Plan, the proposed Downtown Overlay Zone, and the associated review of the SEQR Generic Environmental Impact Statement (GEIS). The City and RDRXR, the selected Master Developer, with assistance from BFJ, developed a new form-based downtown overlay zone for an approximately 309-acre area of Downtown New Rochelle. The adopted zone is an optional overlay district, whereby landowners can choose to opt into development under its proposed requirements. The zone encourages redevelopment through the creation of an active mixed-use district with convenient, safe, and pleasant access to the New Rochelle Transportation Center.

The plan earned the William H. White Award from the New York Metro Chapter of the American Planning Association, which recognizes creativity and ingenuity in planning. It also won a Westchester Municipal Planning Federation Award for planning excellence.

BFJ also played an integral part in refining development and zoning recommendations and  assisted the city in reviewing and coordinating the Full Environmental Assessment Form (FEAF), outlining the technical aspects to be analyzed in the GEIS, review of the draft and final GEIS, assistance with the development of mitigation measures, preparation of the SEQR Findings Statement, and filing of required notices in DEC’s Environmental Notice Bulletin.

Significant issues analyzed in the GEIS included land use, urban design, water and sewer infrastructure, and demand for city services, including impacts on the New Rochelle School District and New Rochelle Police and Fire departments, visual resources, transportation networks and capacity, energy demand, generation and disposal of solid waste, growth inducement, and community character.

Following adoption of the overlay-zone amendments, BFJ has continued to provide on-call planning and SEQR services to the City of New Rochelle. BFJ assisted the city in 2016 and 2017 with minor modifications and the associated analysis to increase the maximum allowable development density (Theoretical Development Scenario) permitted in the zone as analyzed in the GEIS.

BFJ, on behalf of the city, also assists in the review of overlay-zone projects before the Planning Board as part of Site Plan Review. BFJ reviews each site-specific environmental assessment form and other SEQR documentation for completeness, accuracy, and consistency with the 2015 GEIS and adopted SEQR Findings Statement, as amended.

Project Facts

  • Client:

  • The City of New Rochelle
  • Size :

  • 309 acres
  • Services:

  • Environmental Planning
  • Project Partner :

  • RDRXR (Master Developer)
  • Services:

  • Branded Environments + Experiential Design, Planning | Economic Development + Market Analysis
  • Region:

  • United States
  • Studios:

  • New York

    Awards

  • 2016 Award for Planning Excellence, Westchester Municipal Planning Federation
  • 2015 William H. White Award, New York Metro Chapter of the American Planning Association